





Kindertagesstätte Wilischstraße 7 in Dresden
Instandsetzung und Modernisierung
Bauherr:
Landeshauptstadt Dresden - Hochbauamt
Ausführung:
2004 - 2007
Maßnahmen:
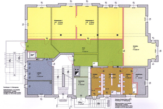
komplette Instandsetzung und Modernisierung Gebäude für die Unterbringung einer Kinderkrippe im Erdgeschoss und einer Kindertagesstätte in den beiden
oberen Geschossen (insgesamt 138 Kinder)
Instandsetzung Dach und Fassade
Anbau Stahltreppe als 2. Rettungsweg